トップページ > 神奈川のエリアで探す > 神奈川県横浜市港北区 > 綱島 > 横浜市港北区綱島西1-4-23 ソリスト綱島(ソリストツナシマ)
神奈川県横浜市港北区綱島西1-4-23 (綱島) ソリスト綱島(ソリストツナシマ) 詳細データ
この物件の物件番号は7908です。お電話(03-6260-6586)でお問合せの際は物件番号をお知らせ下さい。「神奈川オフィスMOVEを見て」とお伝えいただくと話がスムーズに進みます。※不動産業者様へのご紹介は不可です。
| 物件名 | ソリスト綱島(ソリストツナシマ) |
|---|---|
| 沿線/駅 | 東急東横線 綱島駅 |
| バス/徒歩 | バス:- / 徒歩:2 分 |
| 所在地 | 神奈川県横浜市港北区綱島西1-4-23 |
| 所在階 | B1-1/5 階 |
| 面積 | 156.45 坪 |
| 賃料(坪・円) | 坪 8,789 円 (総額 1,375,000 円) |
| 共益費 | |
| 礼金 | |
| 敷金 | |
| 保証金 | 12ヶ月 |
| 竣工年 | 1995 年 |
| 建物構造 | RC(鉄筋コンクリート) |
| 駐車場設備 | - |
| 契約期間 | 5 年 |
| 入居可能日 | 相談 |
| 備考 | 飲食店不可スケルトン24時間利用可土日・祝日利用可天井高2.5m以上 条件交渉ご相談ください。 |
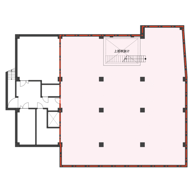
保証金は用途・与信状況等により変動の可能性があります。当初契約期間は5〜10年を想定しております。現状は機械式駐車場設備があります。図面記載の階段は現状はまだ設置されていません。契約締結後、関係者との打ち合わせの上工事開始を予定しており、スムーズに進んでも契約後6〜7ヶ月後の引き渡しとなります。
![]() |
|---|
|
神奈川県横浜市港北区綱島西1-4-23の賃貸事務所(貸事務所)・貸店舗をお探しのお客様へご案内-このたびは首都圏最大級、貸事務所・貸店舗専門ポータルサイトの神奈川オフィスMOVEをご利用いただき誠に有り難うございます。事務所移転、飲食店開業や新規独立まで賃貸事務所・賃貸オフィス・貸店舗の仲介実績豊富なスタッフがフルサポート致します。神奈川県横浜市港北区綱島西1-4-23の大型駐車場付貸事務所、重飲食、美容院や居抜き店舗、レンタルオフィスまで貸事務所(賃貸事務所)、貸店舗を簡単に検索できます!神奈川県横浜市港北区綱島西1-4-23でSOHO、賃貸オフィス、一棟ビルの貸事務所の貸主・オーナー様には無料にて広告掲載いたしますので是非、お問い合わせください。その他、神奈川県横浜市港北区綱島西1-4-23で貸事務所・貸店舗をお探しのテナント様にはフリーレント、引越しサービスやオフィスレイアウトもアドバイス出来ますのでご相談ください。 |












